Under Construction
Nestled deep within a wooded parcel surrounded by mature trees, this mountain home offers a secluded retreat that blends effortlessly into its natural setting. Designed with a traditional aesthetic, the home features bark siding, cedar shakes, and generous outdoor living areas that remain private while still offering strong curb appeal from the approach. Though expansive in size, the architecture is finely detailed to break down the scale and maintain harmony with the forested landscape.
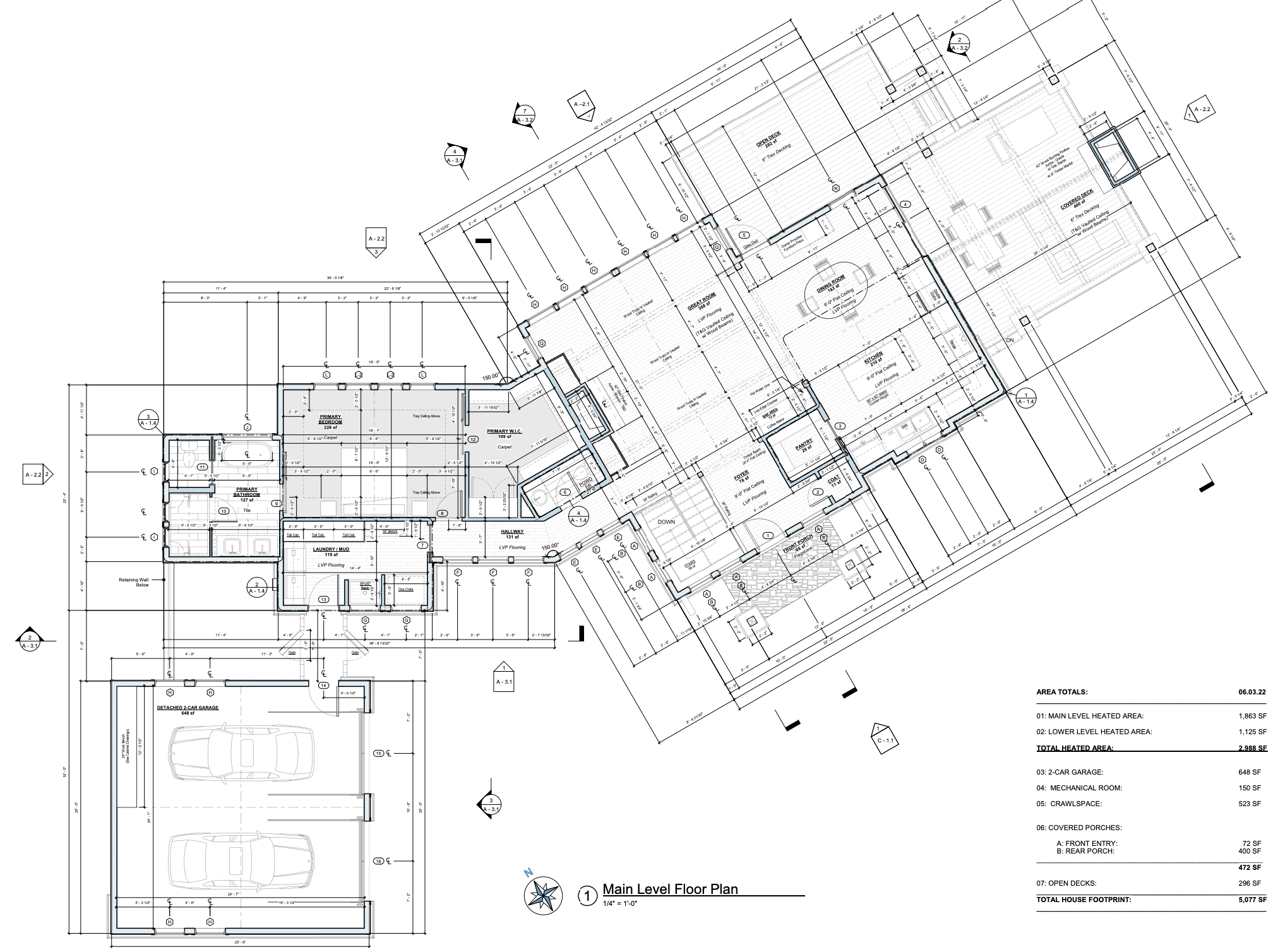
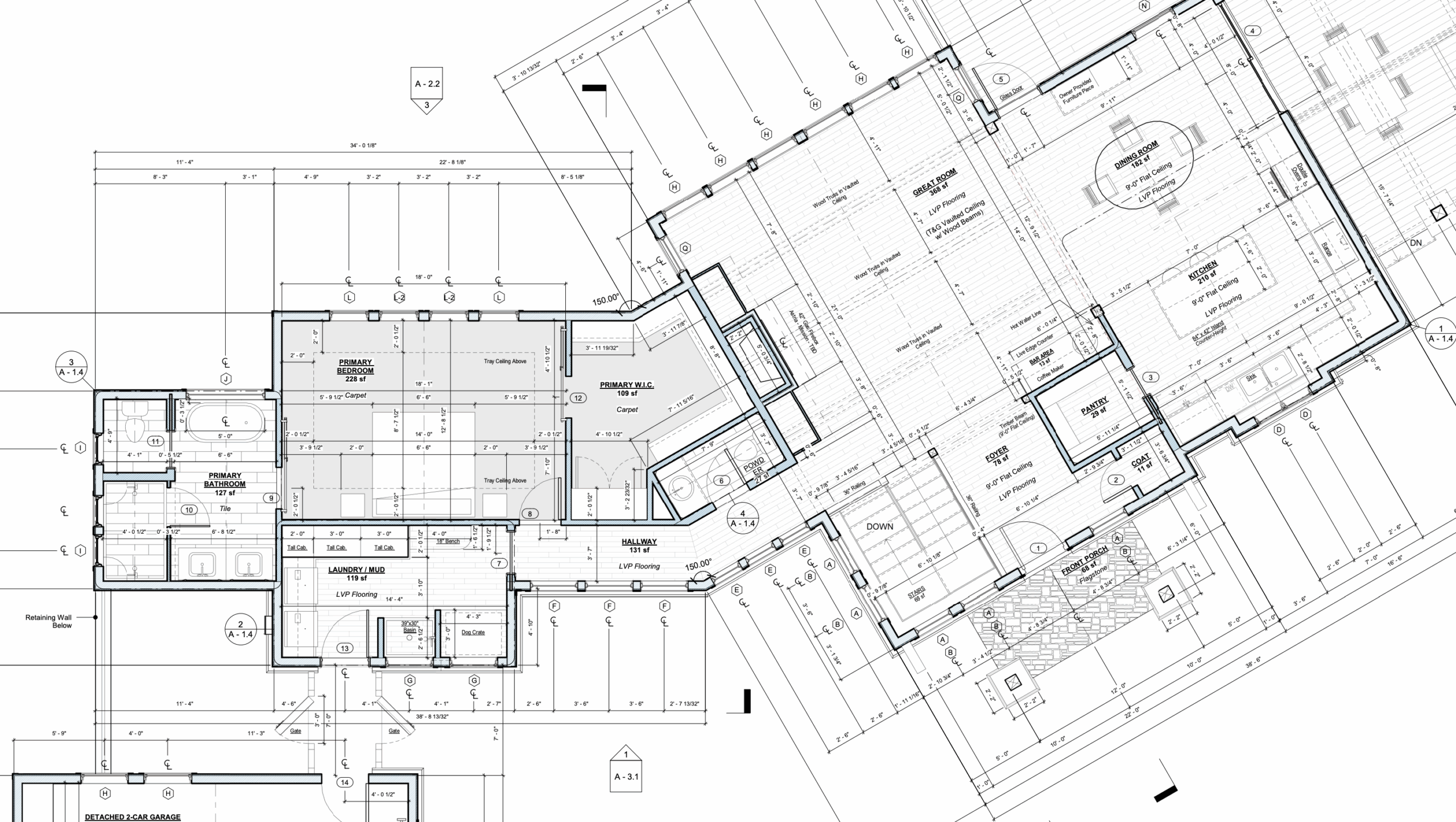
Specs:
- 5,000+ SF
- Primary Suite – 460 SF
- 2 Guest Suites – 680 SF
- Open Concept Great Room – 760 SF
- Laundry & Mudroom – 119 SF
- 2-Car Garage with Breezeway
- Office
- Flex Space












